Chcem ponuku

2 izbový byt, 71 m²
Znievska

, Bratislava - Petržalka

Ponúkame na predaj veľmi pekný 3 izbový byt po práve dokončenej, novej rekonštrukcii v kompletne obnovenom bytovom dome na Znievskej ul. 3, Bratislava V - Petržalka.

 POPIS BYTU

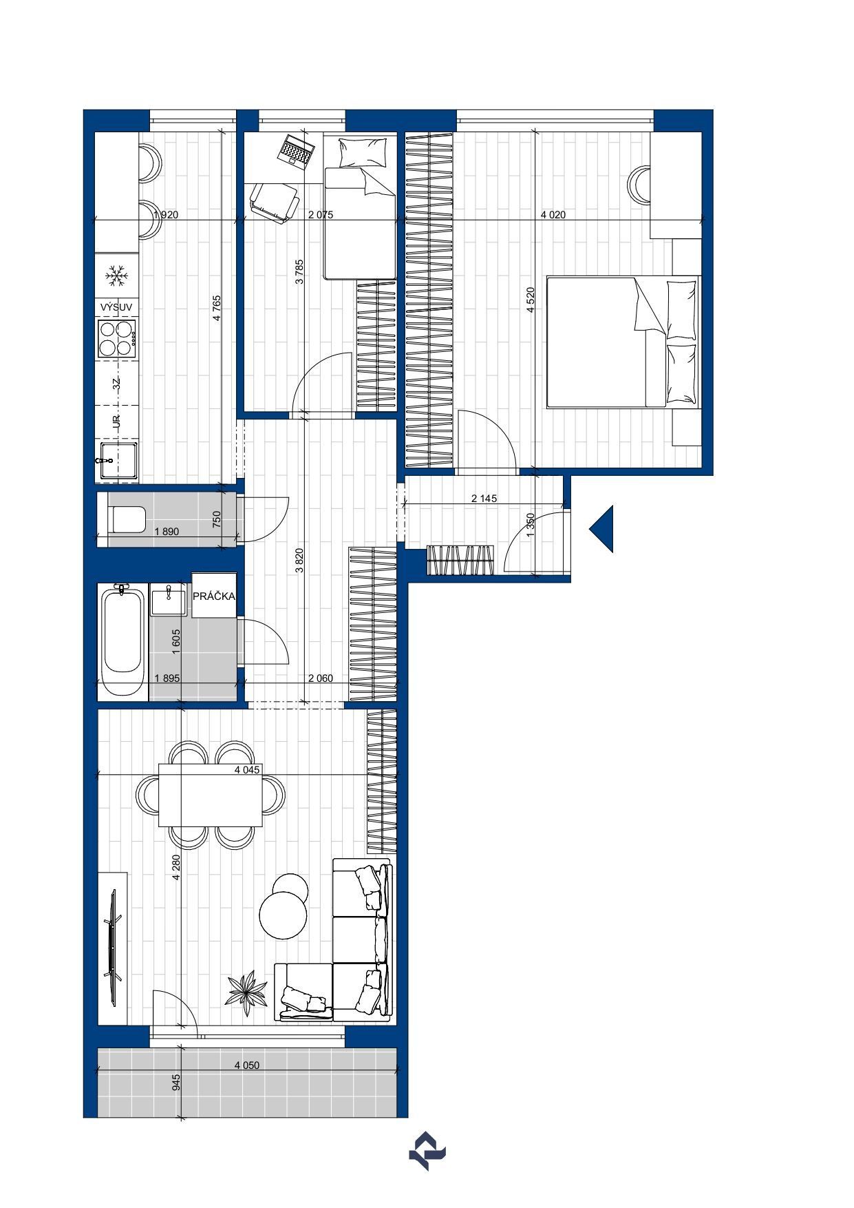
Praktická dispozícia bytu s priestrannou obývacou izbou, veľkou spálňou s výstupom na zasklenú loggiu, menšou spálňou, kuchyňa, kúpeľňa, samostatné WC, predsieň a priestranná hala. Orientovaný je na dve svetové strany východ-západ.

Situovaný je na 1. poschodí, pocitovo však bývate na 3 poschodí vďaka nebytovým priestorom a garážam pod ním.  Úžitková plocha bytu je 67,37m2 + loggia 3,76m2. K bytu prislúcha pivnica v suteréne bytového domu.

Byt sa predáva kompletne zrekonštruovaný, čo navodí príjemný pocit bývania ako prvého majiteľa v novostavbe. Rekonštrukcia je v TOP REINS štandarde.

 

REKONŠTRUKCIA zahŕňa:

- nové elektrické rozvody, stropné svietidlá, vypínače a zásuvky Legrand- dátové zásuvky v každej miestnosti

- nové vodoinštalačné rozvody

- bezpečnostné vchodové dvere

- nové interiérové dvere, zárubne

- nové podlahy

- nová kúpeľňa a WC, nemecké batérie a vaňa, WC závesné, soft close sedátko, rektifikované veľkoplošné obklady a dlažby, umývadlo so skrinkou a zrkadlom s osvetlením, priestor pre práčku a sušičku

V byte sú plastové okná Rehau s exteriérovými roletami,  urobená je komplet predpríprava na kuchynskú linku.

BYTOVÝ DOM

Zateplený, kompletne zrekonštruovaný v r.2021 (EC-B) s vymenenou strechou, stupačkami, 2 výťahmi aj vymaľovanými spoločnými priestormi. Bezbariérový prístup, vstup na čip, zavedená optika v bytovom dome, v suteréne je kočikáreň, parkovanie - parkovacia politika.

 

LOKALITA

Výborná lokalita kde nájdete všetko, čo potrebujete - od obchodov, služieb, cez športoviská, zeleň a oddych pri vode v

pešej dostupnosti. Cez nadchod sa pohodlne dostanete k zastávke električky, Billa, zdravotnému stredisku či telocvične. Blízkosť Veľkého draždiaka, rýchle napojenie na hlavné ťahy a pokojná atmosféra robia z tejto lokality ideálne miesto na život.

 

CENA – 255.000,- €

Cena zahŕňa právne poplatky, poplatky do katastra, pričom kúpne zmluvy sú autorizované advokátom. Samozrejmosťou je možnosť financovať kúpu na hypotekárny úver, s čím Vám ochotne pomôže náš hypotekárny špecialista. Pri nehnuteľnostiach vlastnených našou spoločnosťou NEPLATÍTE PROVÍZIU.

 

Bližšie informácie Vám radi poskytneme na tel. 0948 299 939 alebo email.: cepcek@reins.sk

 

Zobraziť celý popis
Typ nehnuteľnosti 2 izbový byt
Zariadenie Nezariadený
Úžitková plocha 71 m²
Pivnica Áno
Balkón/Terasa Áno
Výťah Áno
Materiál Panel
Stav nehnuteľnosti Rezervované

Rekonštrukcia nehnuteľnosti

Dizajnové oddelenie REINS Home každý mesiac vytvára nové bývanie pre našich klientov. Zameriavame sa na nadčasový dizajn, účelovosť, kvalitné prevedenie a rozumné ceny. Vďaka nášmu zabehnutému procesu, overeným postupom a skúsenosťami s veľkým počtom rekonštrukcií dokážeme spoľahlivo navrhnúť a dodať váš vysnívaný domov.

  • Rekonštrukcia REINS Home je na kľúč

  • Máte možnosť čiastočne meniť rekonštrukciu pred aj počas stavebných prác

  • Nehnuteľnosť vieme uviesť do štandardu alebo aj zariadiť

  • Máte možnosť doobjednať Smart Home paket (osvetlenie, audio)

  • Zrekonštruovali sme už viac ako 100 nehnuteľností

Dohodnúť si konzultáciu
Ing. Blanka Ondrušová

Manažér rekonštrukcie tejto nehnuteľnosti


Možnosti financovania

REINS Finance ponúka široké možnosti prefinancovania nehnuteľností. Máme bohaté skúsenosti s riešením komplexných situácií.

  • Financovanie aj na rekonštrukciu a nábytok

  • Možnosť výmeny starej nehnuteľnosti za novú

  • Riešenie komplexných situácií

  • Analýza bonity zadarmo

Dohodnúť si konzultáciu
Benjamín Šipoš

Hypotekárny konzultant • REINS Finance

Doprajte si pohodlný predaj
bez obhliadok a stresu!

Vyskúšajte predaj nehnuteľnosti s REINS.

Chcem predať nehnuteľnosť s REINS